136 5741 5156
网站首页
关于我们
公司简介
企业文化
公司荣誉
产品与服务
垃圾收集系统
环卫设备
智能垃圾箱
城市水域垃圾清理
垃圾分类服务
人居微环境工程施工
新闻动态
行业新闻
企业新闻
践行成果
践行活动
联系我们
您的位置:
首页
>
产品与服务
>
垃圾收集系统
产品与服务
垃圾收集系统
环卫设备
智能垃圾箱
城市水域垃圾清理
垃圾分类服务
人居微环境工程施工
推荐产品
立体房型-六投放口
立体房型-九投放口
轻钢结构拼装型
钢架结构吊装型
联系我们
湖南蓝驰环境工程有限公司
地址:湖南省长沙市雨花区洞井街道联圭路169号中建嘉和苑第3栋10层3-1011房
手机:136 5741 5156
咨询热线
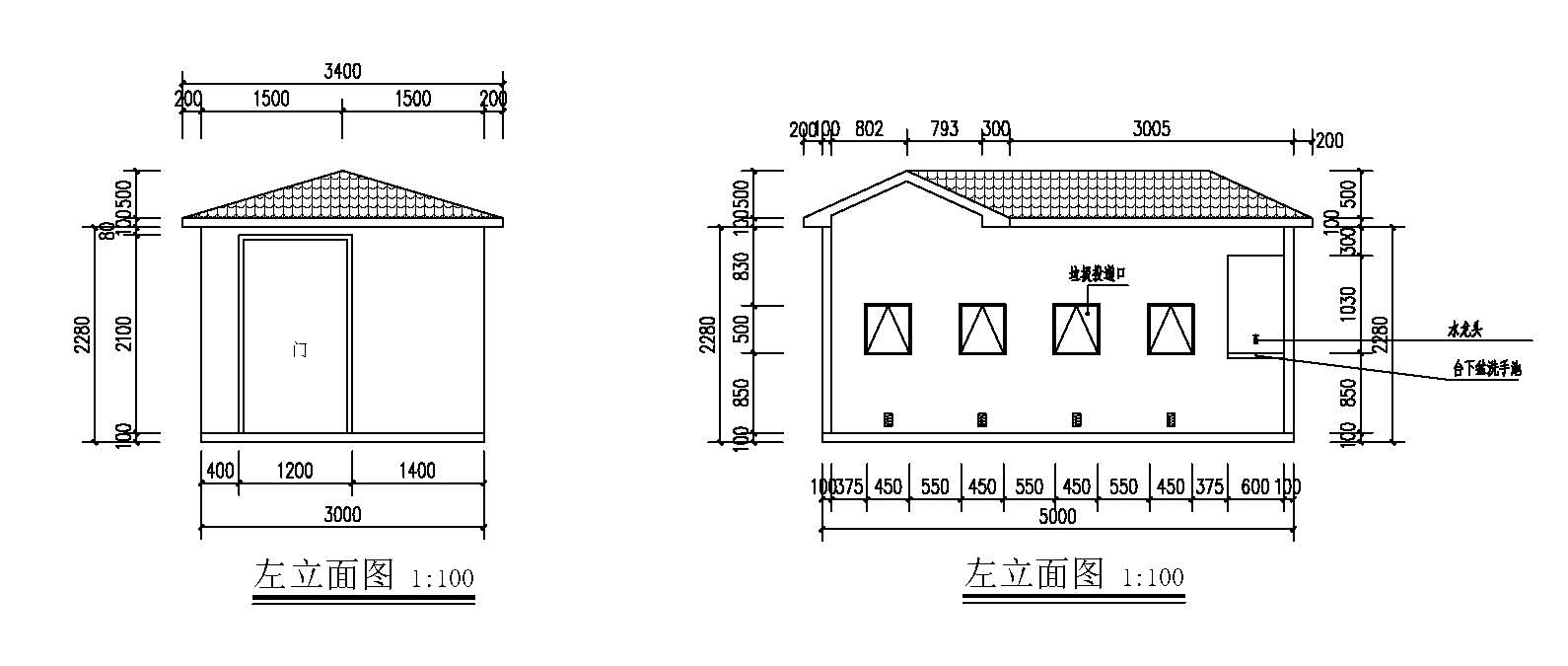
立体房型-四投放口
发布时间:2020-10-19 17:10:50
人气:
根据现场实地个性化设计(轻钢结构拼装型)
四投口平面图
分享到:
上一篇 : 立体房型-六投放口
下一篇:没有了
推荐资讯
2020-10-19
生活垃圾分类实施1年 多数人扔垃圾不分类
2020-10-19
垃圾分类“潮”起来
2020-10-19
圾分类知识小科普!
2020-10-19
别笑上海了,“垃圾分类”马上就轮到这45个城市
Copyright © 2018-2022 湖南蓝驰环境工程有限公司 版权所有
湘ICP备2022019034号
公司地址:湖南省长沙市雨花区洞井街道联圭路169号中建嘉和苑第3栋10层3-1011房